Our Services


3D Rendering
Transforming architectural visions into photorealistic visualizations for clients.


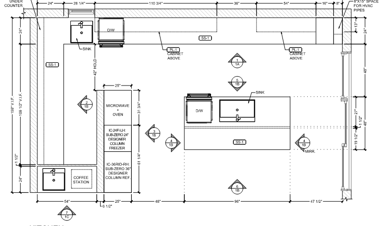
Millwork Shop Drawings
Providing precise documentation essential for efficient fabrication and construction processes, ensuring every detail is meticulously planned and executed for successful project outcomes.

SketchyCAD transformed our vision into reality with stunning 3D renderings and precise shop drawings. Highly recommended!
John D.
The attention to detail in their shop drawings was impressive, making our construction process seamless and efficient.
Sarah L.
★★★★★
★★★★★
SketchyCAD
Millwork Shop Drawings Services.
request a quote
© 2024. All rights reserved.
3D Rendering services
What we offer
Canada Address: 44 Ypres Rd, York, ON M6M 1N9, Canada
Phone: +1 (647) 739-9221
Contact
Email: Info@sketchycad.com
Head office: H.IN.KH.No 293 S/F, Western Marg Saidulajab, Near Saket Metro Station,
New Delhi-110030
